Контакты
Заказ звонка
Нажимая кнопку «Заказать», я даю свое согласие на обработку моих персональных данных, в соответствии с Федеральным законом от 27.07.2006 года №152-Ф3 «О персональных данных», на условиях и для целей, определенных в Согласии на обработку персональных данных
Россия, Москва
Турция, Алания

Описание объекта

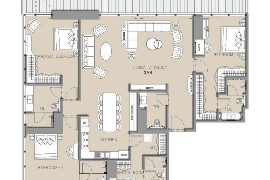
Квартира на продажу в MBL Residence Tower в J

Это может быть момент, когда ваша жизнь изменится навсегда. Это отличная квартира в живописном месте на берегу в Jumeirah Lake Towers в Дубае. Он очаровывает своим четким дизайном, просторной планировкой площадью 2307 кв. футов и великолепным видом на озеро, который останавливает людей на их пути.

Есть много уникальных точек продаж и замечательных ремонтов, которые в сочетании добавляют уникальное измерение дому. Он включает в себя 3 спальни (1 главная), роскошную гостиную, кабинет, комнату для прислуги, очаровательную кухню-полуостров со встроенной техникой, индукционными плитами, барной стойкой, садом на заднем дворе и балконом, которые идеально подходят для отдыха после обеда.долгий день.

Все удобства, которые вам понадобятся, находятся в нескольких шагах от вас. Здесь есть залитый солнцем общественный бассейн, детский бассейн для детей и сверкающий бассейн, где можно охладиться в жаркий летний день. И есть супермаркет и бары для всех ваших повседневных поручений.

Запрашиваемая продавцом цена продажи составляет 3 600 000 дирхамов ОАЭ, это в дополнение к оплате в рассрочку после завершения. Позвоните мне, чтобы прийти и посмотреть его. Это умный поступок.



Характеристики

  • Город Джумейра
  • Площадь брутто (кв.м.) 214 м2
  • Количество спален 3
  • Дополнительные услуги от оборота
  • Характеристики квартиры есть балкон / терраса, хорошее состояние
  • Цена за кв.м. 4602,01
  • Адрес ОАЭ, Дубай, Джумейра
  • Площадь (кв.м.) 214 м2
  • Дата создания объявления 26.11.2022 14:33:48
  • Дата обновления объявления 05.01.2025 21:21:16

Какие способы оплаты доступны для этого объекта? Доступна ли оплата в рассрочку?

Какие способы оплаты доступны для этого объекта? Доступна ли оплата в рассрочку?

Узнать →

Какую сумму закладывать на оформление?

Узнать →

Можно ли сдавать эту недвижимость в аренду?

Узнать →

Задать свой вопрос

Узнать →

Узнать больше об этом объекте

Задайте интересующие вас вопросы менеджеру направления

Менеджер по продажам

Волкова Екатерина
Менеджер по продажам