Контакты
Заказ звонка
Нажимая кнопку «Заказать», я даю свое согласие на обработку моих персональных данных, в соответствии с Федеральным законом от 27.07.2006 года №152-Ф3 «О персональных данных», на условиях и для целей, определенных в Согласии на обработку персональных данных
Россия, Москва
Турция, Алания

Описание объекта

Трехкомнатная квартира в новостройке в районе

За дополнительной информацией, пожалуйста, обращайтесь:
Реф. номер: VAR-104768

Симона Йовчева

Тел (Болгария): +359 882 815 085
Представляем на продажу трехкомнатную квартиру в новом жилом доме в быстроразвивающемся, привлекательном районе Варны - район Пчелина. Район предлагает прекрасный панорамный вид на весь город, Варненское озеро и мыс Галата.

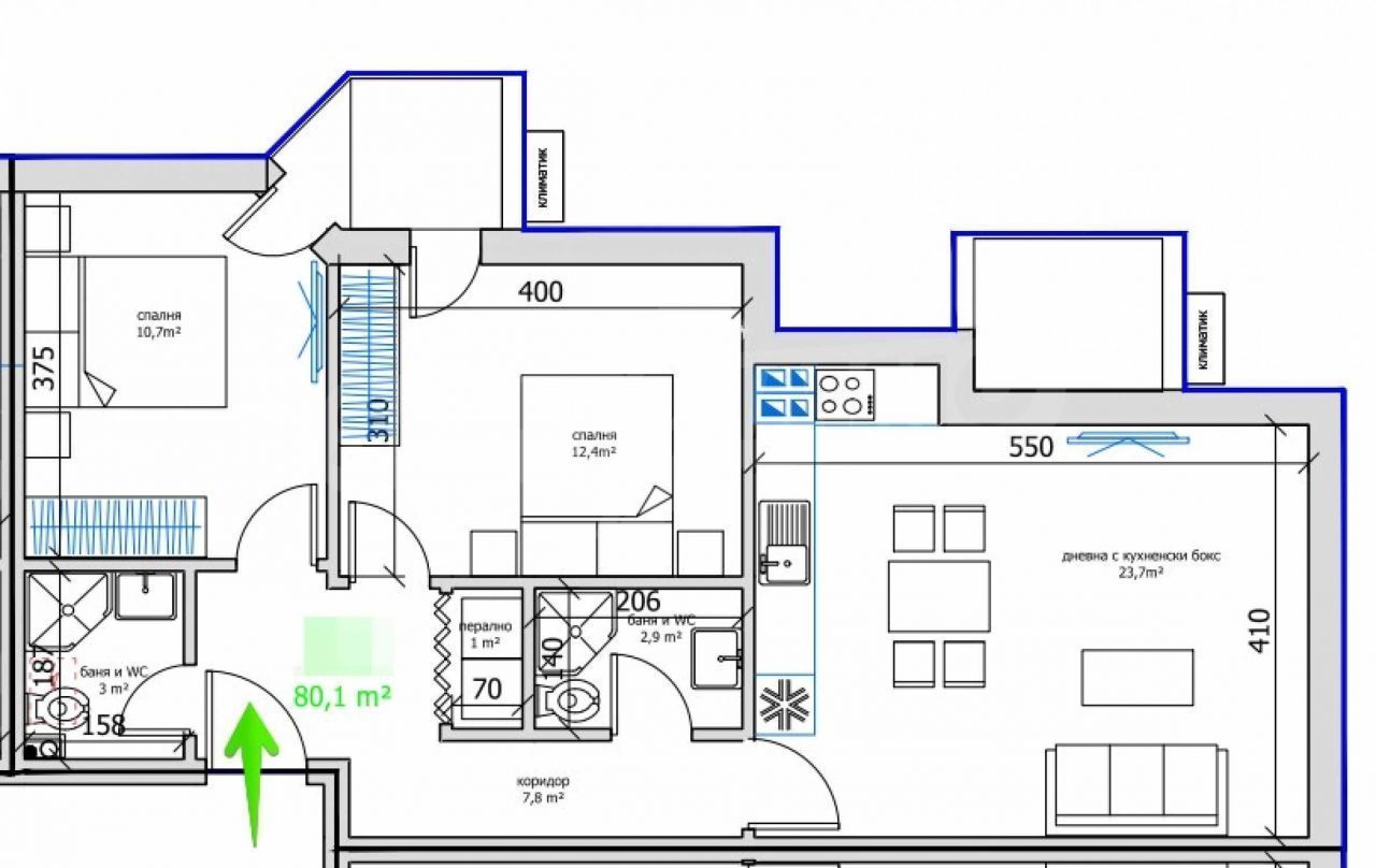
Недвижимость расположена на 3 этаже и имеет общую площадь 94,16 кв. метров: коридор, прачечная, две ванные комнаты с туалетом, две спальни с балконом, гостиная/кухня - 23,7 кв. метров. Сдается с отделкой по БГС (оштукатуренные стены и полы со стяжкой), качественные окна, выходы для коммуникаций, с теплоизоляцией по стандарту в новостройке.

Здание будет расположено рядом с остановками общественного транспорта, с удобным подъездом, всего в 10 минутах езды на машине от центра города. Также в этом районе планируется строительство нового торгового центра с супермаркетом и аптекой.

Распределенное на 5 уровнях, от цокольного до мансардного этажа, с современным лифтом, в здании есть ограниченное количество квартир с одной и двумя спальнями для продажи, а также открытые парковочные места. Фасад выполнен в трех цветах, с французскими окнами и стеклянными перилами, что способствует прекрасному солнечному свету квартир с первых уровней.

Свяжитесь с нами для профессиональной консультации по поводу интересующей вас недвижимости в этом новом здании в Варне.

Смотр недвижимости
Мы готовы организовать смотр недвижимости в удобное для вас время. Обратитесь к ответственному менеджеру по продажам и проинформируйте его, когда бы Вы хотели приехать на смотровой тур. Мы можем помочь Вам забронировать авиабилет и отель, а также помочь Вам оформить визу и необходимую страховку.

Бронирование недвижимости
Вы можете забронировать недвижимость, заплатив невозмещаемый задаток в размере 2 000 евро наличным платежом, кредитной картой или банковским переводом на фирменный счет компании. После получения задатка недвижимость бронируется, осмотры с другими потенциальными покупателями производиться не будут, и начнется изготовление необходимых документов по оформлению сделки. Пожалуйста, обратитесь к ответственному за данный объект менеджеру по продажам для получения подробной информации относительно процедуры покупки и способов оплаты.

Послепродажное обслуживание
Мы уважаемая компания, за плечами которой многолетний опыт работы в сфере недвижимости. Мы будем сопровождать Вас не только во время покупки, но и после приобретения недвижимости, обеспечивая Вам дополнительный набор услуг с учетом Ваших требовании, для того, чтобы Вы могли насладиться полноценным и спокойным времяпровождением в Болгарии. Услуги, которые мы можем предложить, включают страхование, строительство и ремонт, услуги по меблировке, бухгалтерские и юридическиe услуги, переоформление договоров на электричество, воду, телефон и многое другое.


Характеристики

  • Город Варна
  • Этаж 3
  • Площадь брутто (кв.м.) 94.16 м2
  • Стадия постройки Новый дом
  • Всего комнат 2
  • Количество спален 2
  • Количество санузлов 2
  • Этажность 4
  • Цена за кв.м. 785,9
  • Адрес Болгария, Варна, м-т Пчелина
  • Площадь (кв.м.) 94.16 м2
  • Дата создания объявления 25.11.2022 17:30:01
  • Дата обновления объявления 05.01.2025 21:21:11

Какие способы оплаты доступны для этого объекта? Доступна ли оплата в рассрочку?

Какие способы оплаты доступны для этого объекта? Доступна ли оплата в рассрочку?

Узнать →

Какую сумму закладывать на оформление?

Узнать →

Можно ли сдавать эту недвижимость в аренду?

Узнать →

Задать свой вопрос

Узнать →

Узнать больше об этом объекте

Задайте интересующие вас вопросы менеджеру направления

Менеджер по продажам

Волкова Екатерина
Менеджер по продажам